Various Projects

Various Projects

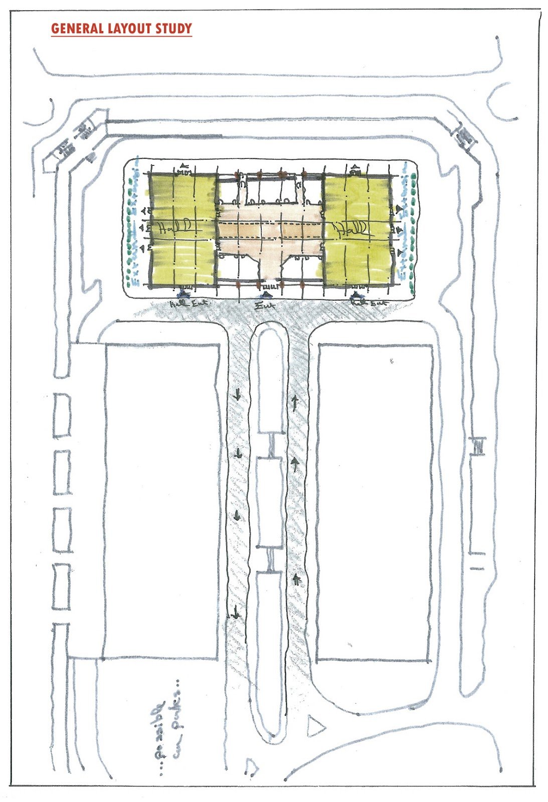
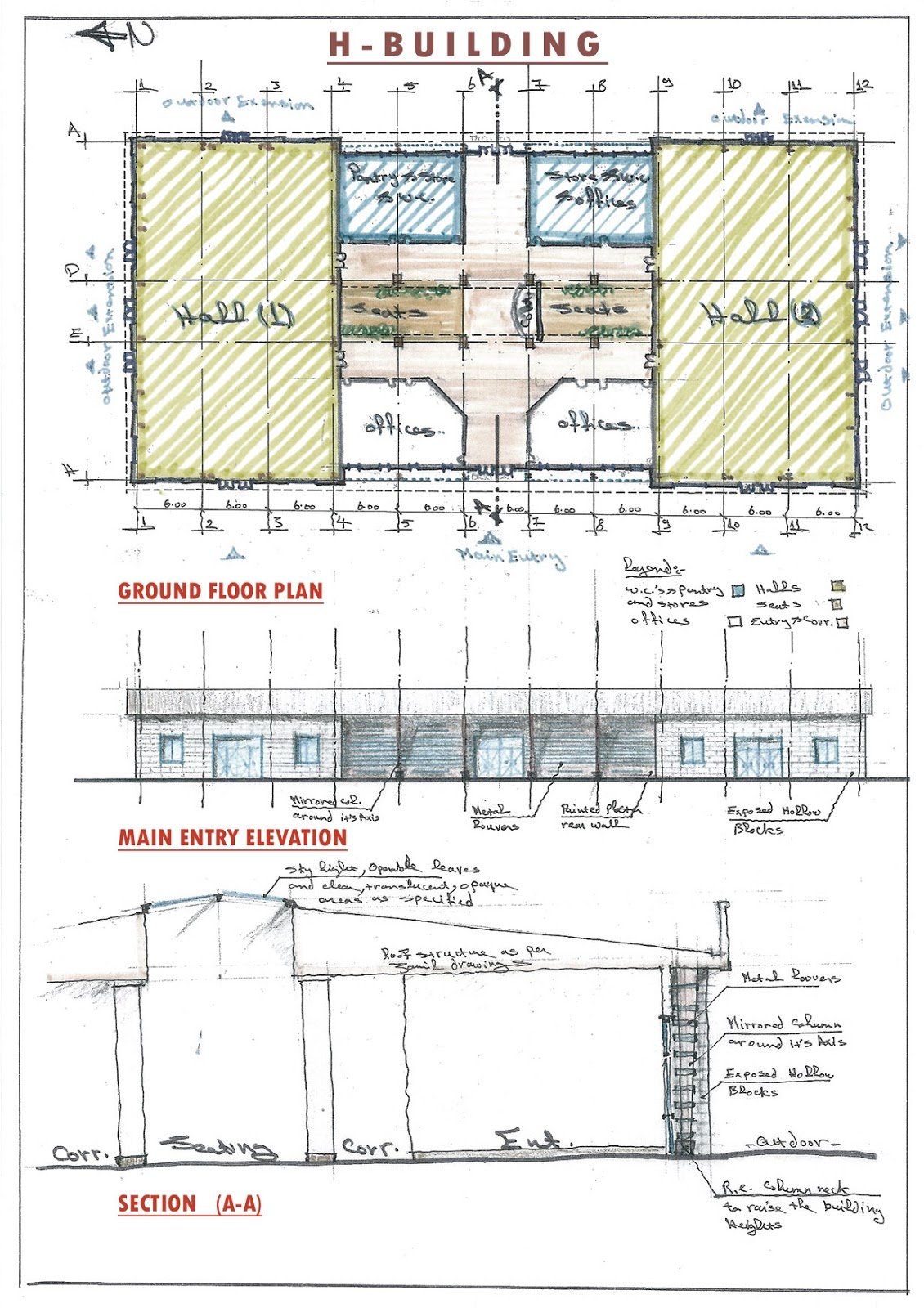
A HOTEL AND SPORTS FACILITIES AT NEW CAIRO

THE BUILDING HAD A RICH COMPONENTS FOR ITS PROGRAM. THE GREEN VAST GREEN SPACE THAT SURROUNDS IT WAS INCORPORATED STRONGLY WITH THE ARCHITECTURAL SPACES. THE ROOF OF THE SPORTS HALL WAS LANDSCAPED TO PROVIDE VIEWS AND ACCESS FOR THE CORRIDORS SERVING THE ROOMS.

scan0013
scan0014
previous arrow
next arrow

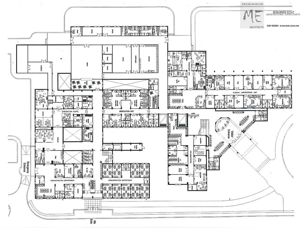
NASSER PUBLIC HOSPITAL DEVELOPMENT PROPOSAL

THE DEVELOPMENT OF THE BUILDING INCLUDED ADDING AN ENTRY MASS, TWO FLOORS FOR PATIENTS ROOMS AND INTENSIVE CARE. THE REST OF THE EXISTING BUILDING WAS REDESIGNED TO THE HOST THE PROPOSED PROGRAM OF THE HOSPITAL

web__3d model final3
scan0041
scan0042
web__3d model final1
web__3d model final2
web__3d model final5
web__3d model final4
web__3d model final6 copy
previous arrow
next arrow

THE REGIONAL EMERGENCY CENTER AND BLOOD BANK AT SOUTH OF SAINAI

THE STORY BUILDING WAS DESIGNED TO HOST THE BLOOD BANK AND THE EMERGENCY CENTER ON THE REGIONAL SCALE OF THE SOUTH OF SAINAI AT SHARM EL-SHEIK.

web__Layout
web__Layout
previous arrow
next arrow

VARIOUS PROJECTS AT THE GUC (GERMAN UNIVERSITY IN CAIRO)

scan0012
scan0008
scan0009
COVER
Hunger 2__fin FIRST (1)
scan0005
previous arrow
next arrow

Leave a Reply

Your email address will not be published. Required fields are marked *