











































__admin_grnd
__adin__extrior_crt
__adin__extrior_crt_01
__adin__brd_in
__adin__extrior_strt_01
__adin__extrior_strt_02
__adin__inShot
Presentation3_Page_1
Presentation3_Page_1_Garden
__lect_grnd
__lect_brd_shts
__lect_int_01
__lect_int_02
__lect_plns
__lib_grnd
__lib_brd_in
__lib_in_01
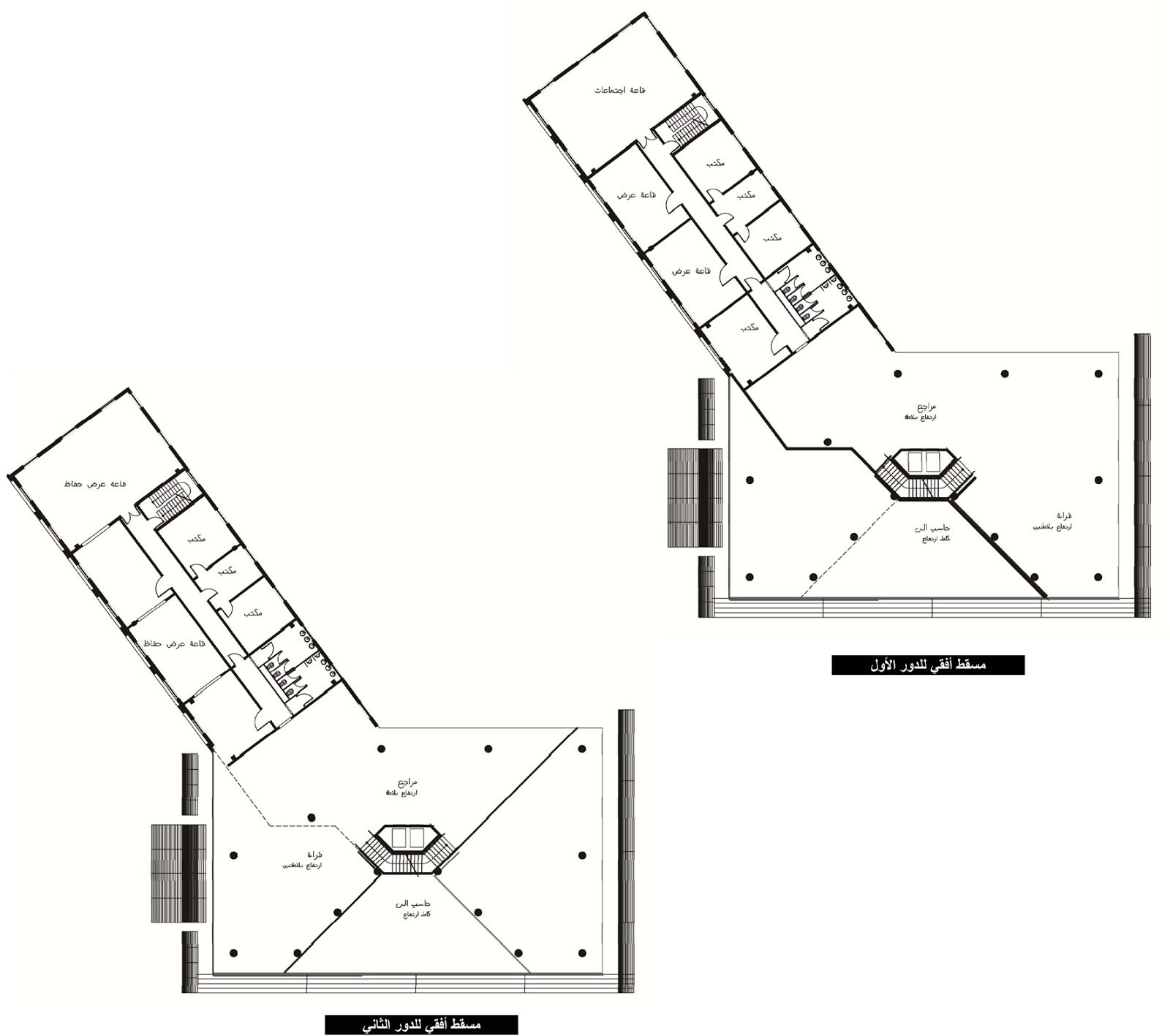
__lib_plns
__lib_shts
__lib_shts_01
__med_brd
__med_brd_in
CANADIAN AHRAM UNIVERSITY CONCEPTUAL DESIGN
THE MAIN EFFORTS WERE PAID TO CREATE APPEALING CONTEMPORARY URBAN AND ARCHITECTURAL SPACES THAT WOULD BLEND NATURALLY WITH THE EXISTING CLASSICAL BUILDINGS.



